Pflege­apartments

Zum Geschwister Pape Quartier zählen 21 exklusive und stilvolle Apartments für Senioren.


Zum Geschwister Pape Quartier zählen 21 exklusive und stilvolle Apartments für Senioren. Das hochwertige Interior der Essensräume und des Clubraumes mit einem Kamin laden zum Verweilen, Entspannen und Plaudern mit den Nachbarn ein. Bei gutem Wetter steht eine traumhafte Dachterrasse mit Blick über Brandenburg zur Verfügung. Genießen Sie hier die Sonne bei einem Kaffee oder einem Stück Kuchen.

Ihr persönliches Apartment richten Sie nach Ihren Wünschen ein. Fühlen Sie sich Zuhause und schaffen Sie sich ihre eigene Wohlfühl-Oase. Wir bieten Ihnen eine eigene Küchenzeile mit Kühlschrank und ein großzügiges, modernes Bad.

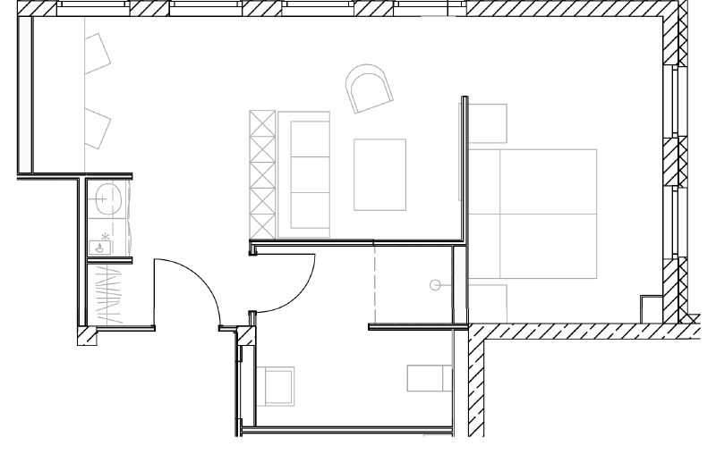
Großzügige Doppelapartments bieten Platz für Ehepaare, die ihren Alltag ggf. trotz beginnender Pflegebedürftigkeit, gemeinsam verbringen möchten. Dabei steht Ihnen ein abgetrennter Schlafbereich, ein Wohnbereich sowie eine Küche und ein seniorengerechtes Bad zur Verfügung.

Durch die vielfältigen Serviceleistungen können Sie den Alltag genießen. Nutzen Sie Ihre Unabhängigkeit und leben Sie ein möglichst aktives Leben mit dem Plus an Sicherheit und Pflege, die von unserem Fachpersonal aus dem ambulanten Pflegedienst sichergestellt wird.

Besonderheiten der Einrichtung

  • Eigene kleine Küchennische mit Kühlschrank und Spüle in jedem Apartment
  • Nutzung von Sauna, Gemeinschaftsküche, Clubraum, Dachterrasse, Sportraum und mehr
  • Gesunde Vollverpflegung angepasst an individuellen Gesundheitszustand
  • Vermittlung von Dienstleistungen (z.B.: Friseur, Fußpflege, Massage, Kosmetik, Physio-, Logo- und Ergotherapie) direkt im Quartier
  • Reinigungs- und Wäscheservice
  • Hausnotrufsystem mit 24-stündiger Sicherheit an 365 Tagen im Jahr
  • Kostenloser Fernsehanschluss, freies WLAN & Telefon inklusive Flatrate
  • Individuelle Pflege und Betreuung nach therapeutischem Ansatz
  • ... und vieles mehr

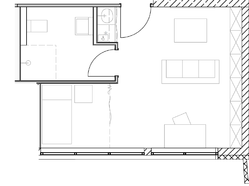
Einzel-Apartments

Größe der Räume
Wohn- & Schlafbereich: bis zu 27,7 m2
Bad: bis zu 9,3 m2
Clubraum: bis zu 51 m2
Küche und Essbereich: bis zu 102 m2
Terrasse: über 150 m2

 

Doppel-Apartments für Paare

Größe der Räume
Wohn- & Schlafbereich: bis zu 42,7 m2
Bad: bis zu 9,3 m2
Clubraum: bis zu 51 m2
Küche und Essbereich: bis zu 102 m2
Terrasse: über 150 m2

 

Impressionen

Gästebewertungen

"Danke, dass Sie sich so intensiv und liebevoll um meinen Bruder gekümmert haben, wo stünden wir ohne Sie!" ★★★★★
Ihre Theresa & Karl-Heinz Elbert

Jetzt kostenlosen Besichtigungstermin vereinbaren

Überzeugen Sie sich persönlich von unseren hellen, stilvollen Apartments und attraktiven Gemeinschaftsräumen. Hinterlassen Sie uns gern Ihre Kontaktdaten und wir melden uns bei Ihnen.

Was ist die Summe aus 4 und 5?